Serie Z26.3 - Kette, im Innenradius zu befüllen
1. Torsionsbewegungen möglich
2. Große Bolzen - lange Lebensdauer
3. Leitungsschonender Innenraum
4. Anschlusselement mit integrierter
Zugentlastung möglich
5. Version E, im Außenradius zu befüllen
6. Version Z, im Innenradius zu befüllen
7. Schmutzabweisende Außenkontur
8. Sehr leicht zu befüllen
9. Mit 1-, 2- oder 3-Kammersystem lieferbar
(fest eingespritztes Mehrkammersystem
für getrennte Leitungsverlegung)
Serie Z26 )
Serie Z26.2
10. "Druckknopfprinzip" hält Glieder zusammen
Lieferb. Innenbreiten: 3x47 mm
Lieferbare Biegeradien R: 63 bis 250 mm
Teilung: 56 mm je Glied = 18 Glieder/m
Am Öffnungsprinzip überlappende Öffnungsstege
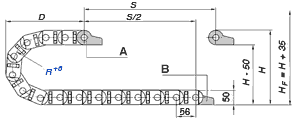
A=Mitnehmer, B=Festpunkt
Teilung: 56 mm
Glieder pro m: 18
Verfahrweg: S
Kettenlänge = S/2 + K
K = Zugschlag für Biegeradius bei der e-ketten Längenberechnung in mm
Hinweis: Kettenlänge für die Kettenglieder wird aufgerundet, da es keine halben Glieder gibt.